16/05/18
Case cu etaj si trei dormitoare. Spatiu suficient pentru o familie
Pentru o familie formata din patru sau chiar cinci membri, o casa cu etaj si trei dormitoare reprezinta alegerea perfecta. In randurile de mai jos, am ales trei proiecte de case, ideale pentru familiile numeroase, dar si pentru cei care isi doresc o locuinta spatioasa si pun pe primul loc confortul propriu.
Locuintele sunt pentru toate gusturile si pentru orice buget, cea mai ieftina fiind de 63.000 euro, in timp ce casa cea mai scumpa costa putin peste 100.000 euro.
Primul exemplu este reprezentat de o casa cu o suprafata de 150 metri utili. Locuinta dispune la parter de o zona open space, care curpinde bucataria, livingul, precum si o baie.
La toate acestea se adauga un garaj si o superba terasa. In continuare, la etaj, se regasesc trei dormitoare spatioase, un dressing si o baie. Pretul la rosu pentru aceastra constructie este de 27.000 euro, in timp ce pretul la cheie este de circa 63.000 euro.
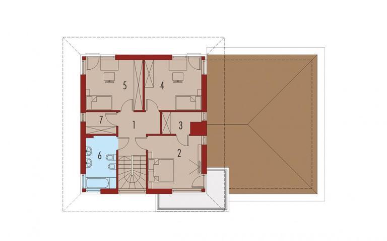
Al doilea exemplu este o casa care dispune de un garaj pentru doua masini si de o suprafata foarte generoasa de 240 metri utili.
Casa are o estetica superioara, in mare parte datorita combinatiilor de materiale diferite de pe fatada, volume care se intrepatrund, dar si gratie ferestrelor largi. La parter se afla un spatiu de zi deschis, ce cuprinde sala de mese, livingul dar si bucataria, si care are acces pe o terasa generoasa.
Apoi, la etaj, se regasesc trei dormitoare, cel matrimonial fiind deschis spre exterior printr-un perete de sticla, alaturi de o incapere ce poate servi drept camera de relaxare sau care poate fi transformata in dormitor, la nevoie. Pretul la cheie al acestei locuinte este de aproximativ 109.000 euro.
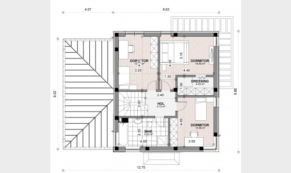
Al treilea si ultimul proiect prezentat este o casa cu o suprafata de 167 metri utili. Locuinta dispune de o impartire ideala pentru o famile formata din patru sau chiar cinci membri.
Astfel, casa dispune la parter de un living generos de aproape 38 metri patrati, o bucatarie, o baie, un vestibul, dar si o camara, la care se adauga un garaj.
La etaj se regasesc trei dormitoare spatioase, o baie si un dressing. Pretul la rosu pentru aceasta locuinta este de 38.000 euro, in timp ce pretul la cheie este putin peste 93.000 euro.
Foto: eproiectedecase.ro, casemexi.ro
Locuintele sunt pentru toate gusturile si pentru orice buget, cea mai ieftina fiind de 63.000 euro, in timp ce casa cea mai scumpa costa putin peste 100.000 euro.
Case cu etaj si trei dormitoare - modelul 1
Primul exemplu este reprezentat de o casa cu o suprafata de 150 metri utili. Locuinta dispune la parter de o zona open space, care curpinde bucataria, livingul, precum si o baie.
La toate acestea se adauga un garaj si o superba terasa. In continuare, la etaj, se regasesc trei dormitoare spatioase, un dressing si o baie. Pretul la rosu pentru aceastra constructie este de 27.000 euro, in timp ce pretul la cheie este de circa 63.000 euro.




Case cu etaj si trei dormitoare - modelul 2
Al doilea exemplu este o casa care dispune de un garaj pentru doua masini si de o suprafata foarte generoasa de 240 metri utili.
Casa are o estetica superioara, in mare parte datorita combinatiilor de materiale diferite de pe fatada, volume care se intrepatrund, dar si gratie ferestrelor largi. La parter se afla un spatiu de zi deschis, ce cuprinde sala de mese, livingul dar si bucataria, si care are acces pe o terasa generoasa.
Apoi, la etaj, se regasesc trei dormitoare, cel matrimonial fiind deschis spre exterior printr-un perete de sticla, alaturi de o incapere ce poate servi drept camera de relaxare sau care poate fi transformata in dormitor, la nevoie. Pretul la cheie al acestei locuinte este de aproximativ 109.000 euro.




Case cu etaj si trei dormitoare - modelul 3
Al treilea si ultimul proiect prezentat este o casa cu o suprafata de 167 metri utili. Locuinta dispune de o impartire ideala pentru o famile formata din patru sau chiar cinci membri.
Astfel, casa dispune la parter de un living generos de aproape 38 metri patrati, o bucatarie, o baie, un vestibul, dar si o camara, la care se adauga un garaj.
La etaj se regasesc trei dormitoare spatioase, o baie si un dressing. Pretul la rosu pentru aceasta locuinta este de 38.000 euro, in timp ce pretul la cheie este putin peste 93.000 euro.




Foto: eproiectedecase.ro, casemexi.ro
Dacă te interesează astfel de ştiri, te aşteptăm să te alături paginii noastre de Facebook, cu un Like mai jos:
Ultimele Anunțuri: