04/12/20
Proiecte de case traditionale, cu 3 sau 4 camere. Trei modele speciale
Fara indoiala, este foarte dificil sa gasesti casa perfecta pentru tine, insa sunt cateva aspecte esentiale pe care trebuie sa le ai in vedere. In primul rand, trebuie sa te decizi asupra materialelor din care sa fie construita, acesta fiind primul si unul dintre cei mai importanti pasi.
Apoi, la fel de important este numarul incaperilor, care trebuie ales in frunctie de numarul persoanelor care vor locui acum in casa, dar si in viitorul apropiat. Nu in ultimul rand, este important sa alegi stilul casei tale. Iti doresti o casa construita in stil traditional, cu etaj sau mansarda sau prefer io casa moderna, care sa aiba geamuri mari, din sticla, de exemplu?
Pentru aceia dintre voi care aleg prima varianta, am pregatit astazi 3 proiecte de case traditionale, cu 3 sau 4 camere, perfecte pentru o familie formata din 4-5 membri.
Prima casa are garaj integrat si o suprafata construita de 247 metri patrati, dintre care suprafata utila este de 197 metri patrati. Casa dispune la parter de spatiile de zi, la care se adauga un birou, care poate fi transformat in dormitor, la nevoie. La mansarda se afla 3 dormitoare, un dressing si o baie. Pretul la rosu pentru aceasta locuinta porneste de la 33.000 euro.
Al doilea proiect este o casa cu un garaj integrat si o suprafata 180 de metri patrati utili. Casa se remarca prin fatade bogat si elegant imbracate in caramida, inclusiv stalpii de sustinere exteriori, in contraste cu restul suprafetelor. Parterul reuneste spatiile de zi deschise, extinse in afara printr-o terasa semicirculara, o baie, un birou si o camera tehnica completand acest nivel. La etaj se afla trei dormitoare, unul dintre ele cu acces pe un balcon. Pretul la cheie al acestei case este de 81.000 de euro.
Ultima casa pe care o includem pe lista noastra este o casa mica, cu mansarada. Suprafata construita pentru aceasta casa este de 142 metri patrati, dintre care suprafata utila este de 121 metri patrati.
Pretul la cheie pentru aceasta casa este intre 58.000 euro si 67.000 euro, in functie de materialele folosite. La parter, casa dispune de o bucatarie, un living, un dormitor si o baie. La mansarda se regasesc inca 3 dormitoare si o baie.
Foto: casemexi.ro, eproiectedecase.ro, casebinefacute.ro
Apoi, la fel de important este numarul incaperilor, care trebuie ales in frunctie de numarul persoanelor care vor locui acum in casa, dar si in viitorul apropiat. Nu in ultimul rand, este important sa alegi stilul casei tale. Iti doresti o casa construita in stil traditional, cu etaj sau mansarda sau prefer io casa moderna, care sa aiba geamuri mari, din sticla, de exemplu?
Pentru aceia dintre voi care aleg prima varianta, am pregatit astazi 3 proiecte de case traditionale, cu 3 sau 4 camere, perfecte pentru o familie formata din 4-5 membri.
Proiecte de case traditionale - Modelul 1
Prima casa are garaj integrat si o suprafata construita de 247 metri patrati, dintre care suprafata utila este de 197 metri patrati. Casa dispune la parter de spatiile de zi, la care se adauga un birou, care poate fi transformat in dormitor, la nevoie. La mansarda se afla 3 dormitoare, un dressing si o baie. Pretul la rosu pentru aceasta locuinta porneste de la 33.000 euro.



Proiecte de case traditionale - Modelul 2
Al doilea proiect este o casa cu un garaj integrat si o suprafata 180 de metri patrati utili. Casa se remarca prin fatade bogat si elegant imbracate in caramida, inclusiv stalpii de sustinere exteriori, in contraste cu restul suprafetelor. Parterul reuneste spatiile de zi deschise, extinse in afara printr-o terasa semicirculara, o baie, un birou si o camera tehnica completand acest nivel. La etaj se afla trei dormitoare, unul dintre ele cu acces pe un balcon. Pretul la cheie al acestei case este de 81.000 de euro.



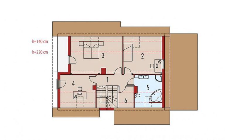
Proiecte de case traditionale - Modelul 3
Ultima casa pe care o includem pe lista noastra este o casa mica, cu mansarada. Suprafata construita pentru aceasta casa este de 142 metri patrati, dintre care suprafata utila este de 121 metri patrati.
Pretul la cheie pentru aceasta casa este intre 58.000 euro si 67.000 euro, in functie de materialele folosite. La parter, casa dispune de o bucatarie, un living, un dormitor si o baie. La mansarda se regasesc inca 3 dormitoare si o baie.



Foto: casemexi.ro, eproiectedecase.ro, casebinefacute.ro
Dacă te interesează astfel de ştiri, te aşteptăm să te alături paginii noastre de Facebook, cu un Like mai jos:
Ultimele Anunțuri: